close

1
這是一個長達三年的計劃..........................

人不親土親,這種價值觀其實存在於每個年少時就離鄉背井、到外地打拚的遊子,即便經過多年,仍想到家鄉,建立一個屬於自己的天地,這種對於土地的認同感,促使我們今天事故的主角,在事業繁忙的情況下,仍排除萬難,一定要實現自己年少時的夢想.....在家鄉蓋出一棟兼俱實用及地標的宅邸,也算是對自己的肯定及對鄉里的回饋。

收到的地籍圖......

 


2

98年筆者接到電話:「設計師,你下午有空嗎?可以陪我到羅東看一塊地嗎?因為你已經為我們家族服務過多次,對於我們的喜好及需要都十分熟稔,並且我們也只相信你,所以想請你幫我們家族主持這個計劃!麻煩了!」

準備了一下,就往羅東出發了,台北的後花園,因有雪隧而縮短了時空距離,這裡真算得上好山好水,少了都市的繁忙及擁擠,取而代之的是空氣中飄著青草香及田園間的寧靜,放下台北帶來的喧囂,這裡雖稱不上是人間仙境,但漫步在田野間,對我這個來自於都市的"台北俗"來說,這裡的環境實在是一種平凡的奢求,到達現場,後方是羅東溪堤防,左方步行約5分鐘可達羅東運動公園,我們的基地佔地約1500坪,在這區塊內只有二棟民宅,一棟是名為建築師會館的民宿,另外一棟則是住家,因為鄰近羅東溪,水源不虞潰乏,不斷自地底冒出湧泉。

3

建築師會館,很具現代感的極簡設計,讚........

 

4

 這一棟位於我們的右手邊,有點像“多啦A夢”裡面出現的房子........

 

5

我們的基地

6

一直有湧泉流出......水源相當充沛...............

接下來就著手開始設計了,我們約略計算一下容積及建物高度,加起來共計接近500坪,真是名符其實的"大宅門"啊!建築師提出以美式大別墅的構想,認為在坪數規模上能夠表達氣派感,但業主思考了一下說我們這棟房子並不一定要炫富的氣派,而是要在家鄉留一棟能夠傳世,並成為當地特色的建築,在使用定位上要有住家的功能,也兼俱公共空間,如會館招待所,甚至民宿的可能,所以在外觀上必需很不住家,還要有特色、有文化感........,頓時氣氛變得嚴肅起來,當下業主表示要我們與建築師各設計一個外觀下週討論,回程時在車上想了很久,認識業主多年,但少見他會如此嚴肅,想必是背負了一個家族的使命,壓力應該也很大,那麼我該好好的想想了!

7

建築師提出的構想.....

 

8

早期手繪稿之一,有迴廊式,但未考慮整體比例,所以看起來有點高........

還有臨時想起的門框細部樣式,怕忘記,先畫起來存著.........

9 複製

還有和式屋頂西式屋身的和洋式建築.......都還在構思階段......

 

以上手繪稿都還只是示意,經過思考後畫下來的........

那天開完會回來後,一直有幾個形容詞在我腦海迴盪:具當地代表性、會館、公共空間、文化特色..... 那氣候算不算是呢?業主久居台北僅假日回去,但宜蘭多雨,如果難得回去又逢下雨,豈不掃興。一個建築設計至少要思考80年,以現在的材料科技,RC造的房子,保存100年也不是不可能,所以我得把設計的思考點拉到50、80,甚至100年以後,能想到的都要考慮,鑒古知今,這個觀點讓我想到100年前的房子,當時台灣正處日治時期,在風格上因為東西文化交融,產生了許多和洋式建築(就是歐美屋身、日式屋頂)或是有迴廊、改良式牆垣.....殖民地風格建築,這也許能符合業主的想法,就畫畫看吧!

經過一週的沈潛,畫了二種外觀,又到了開會的時候了,這次業主家族全員到齊,陣仗之大,共來了23人!!一起到建築師事務所聽取簡報,可見對此事的慎重;建築師也是有備而來,不斷強調美式大別墅的休間自在,也認為很適合當地。而我只是表達和洋建築及殖民地風格的文化性及傳承性,以及房子與環境的關係,經過一番各自表述設計理念過程,各有特色,最後業主家族決定以23人投票決定方向,結果幾乎都一致認為我提出的殖民地的建築哲學,是符合他們的想法。方向定案,由我負責所有外觀及內部設計,建築師則負責請照及法規等..事務性工作..... 這下好了,公親變事主,球員兼裁判,由室內設計到室外,對建築師真是歹勢啊......◎◎......!!!

101 0361 0371 038 

設計一個建物立面還算容易,但設計完後的銜接,還有結構計算、水電迴路,以及收頭收尾的細節就要大費苦心了!因為這些原來都是建築師的工作,現在都必需由我一手包辦,一時之間有點千頭萬緒,不過這樣也有好處,因為內外都出自一人之手,也不會在未來裝潢時,因為設計上的堅持相互影響到對方的工作,筆者個人的習慣,是希望建物不論從哪個角度看,都是正面,不要有顯的正後面的分別,這樣建築物才會完整。 

11

經過二個月反覆檢討,外觀立面終於完成了!如前所敘述設計理論,以殖民地風格為基礎,講究對襯、平衡、比例,並設迴廊空間,以供雨天時活動場所,也可避免以後漏水現象,再者因迴廊而產生前後景概念,可讓建物多一層裝飾性,以避免因古典設計而產生過於嚴l肅的現象,外觀完成,業主迫不急待要我們畫3D圖,看看這家族建物以後會是什麼模樣,看起來風格是到位了。

 1F-1

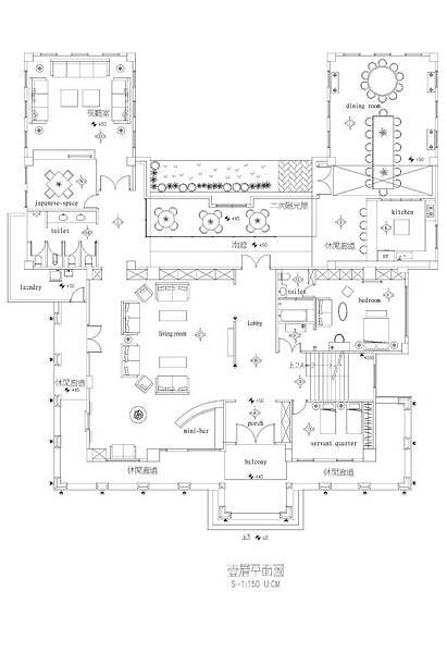
室外完成後,立即開始內部設計,由格局開始,我們在一樓預計規劃出玄關、內廊道、接待大廳、陽光咖啡座、吧枱區、廚房及宴會廳、視廳室、麻將間及二間客房,其中設計一扇大橫拉門,將接待大廳及二間客房區隔,以達動靜分離目的。光一個接待大廳,坪數就超過50坪,真的好大,這種場景,很難在寸土寸金的台北市出現,所以不能過度依賴在台北的設計邏輯,整體思考性都必須改變,以符合坪數規模。

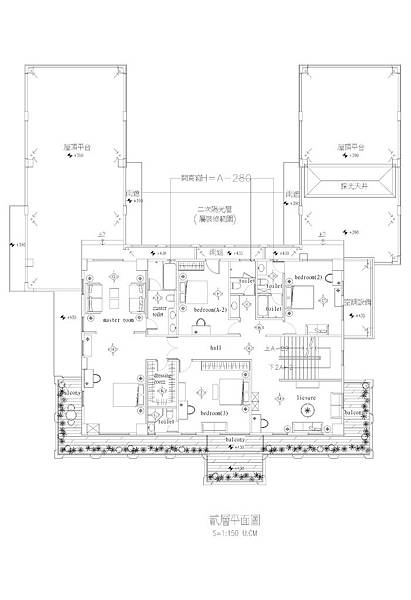
2F

二樓則設起居室及5間客房,由廊道串連,並如同一樓,規劃有迴廊及露台。

3F

三樓則設三間客房,露台外設計一涼亭,供休憇使用。

待續.........................

 

  

EasyDeco 藝珂設計 
設計諮詢專線:(02)2722-0238
官網:http://www.easydeco.net
E-Mail: service@easydeco.net

facebook粉絲團.jpg

 

  

 

 

全站熱搜
創作者介紹
創作者 EasyDeco藝珂設計 的頭像
EasyDeco藝珂設計

EasyDeco 藝珂設計

EasyDeco藝珂設計 發表在 痞客邦 留言(2) 人氣()